
During my internship with Mieke Vink at Lüchinger Architects, I and my fellow intern Thomas Zhang, collaborated on a project to transform a historic barn into a liveable house. This project involved designing a barn, originally used for cows, with a characteristic black wooden facade and thatched roof, into a home for an elderly woman.
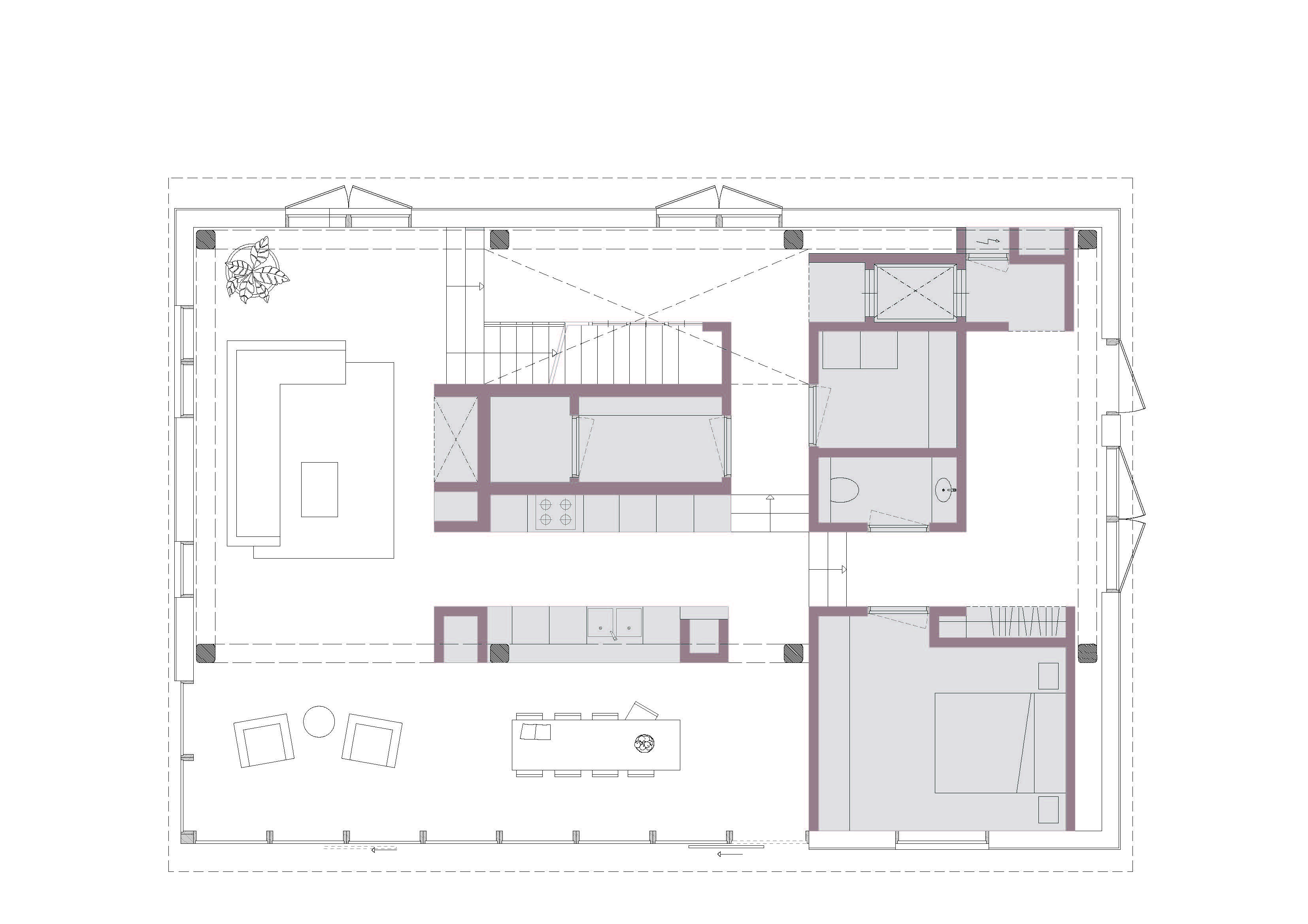
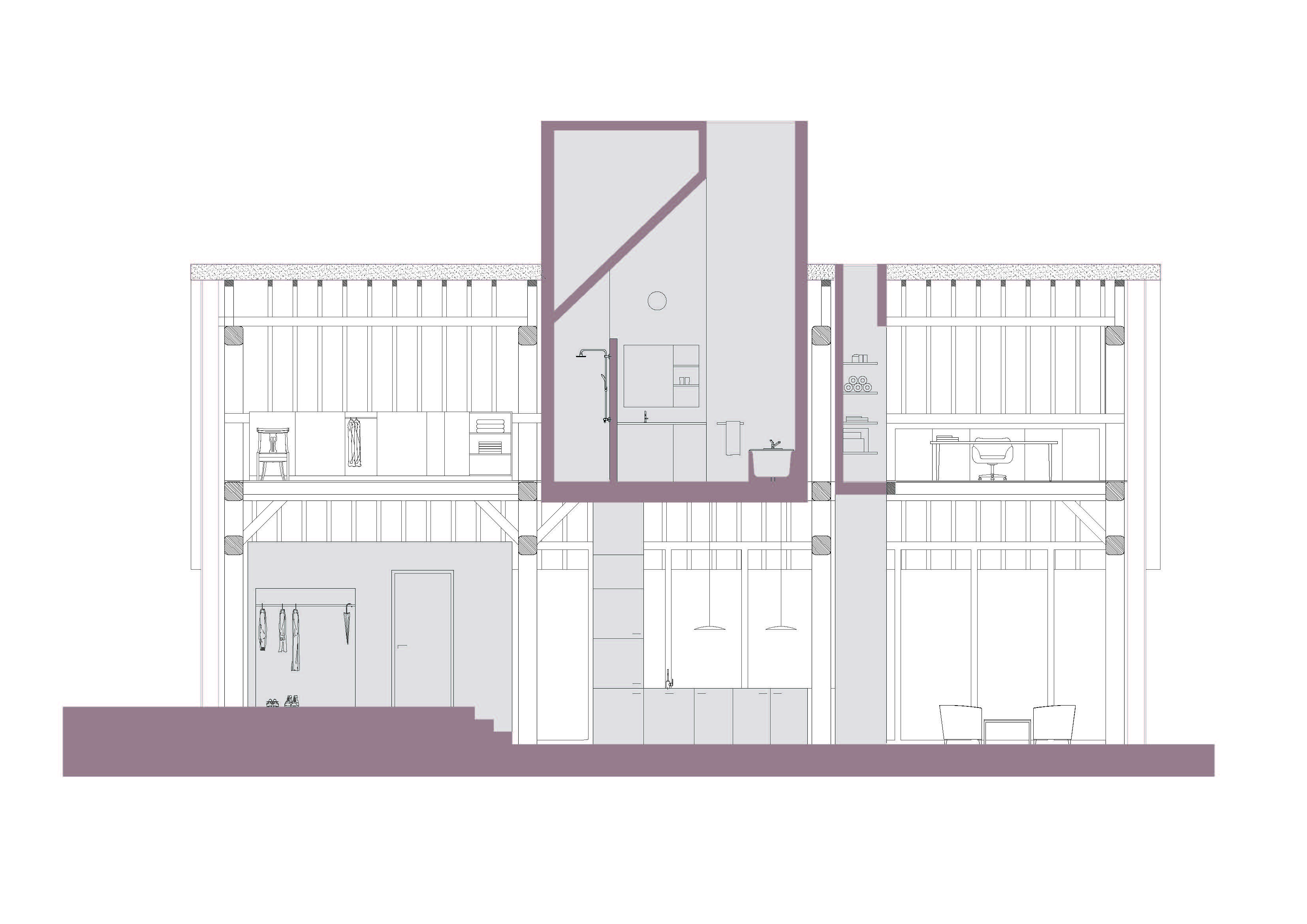
The barn had long been used as a garage and storage. Luckily, most of its wooden columns and beams were still intact, providing a framework for the transformation. Mieke's vision was to preserve as much of the existing structure as possible, allowing it to carry the light facade structure. In the centre of the home, a “hearth” would be established. This hearth would be the core of all the essential infrastructure of the home, the fireplace, the kitchen, the bathroom and the stairs to the second floor. This core became one of the main aspects of the concept, designed to rise through the sentre of the building allowing spaces to naturally emerge around it.
Our role as interns focused on modeling and design the spaces through modelmaking. Iterating on the layout of the core to ensure it to fit within the existing wooden structure. We began the process by analyzing and understanding the existing wooden structure, creating a model of the wooden beams and colums to use as a base for designing the core.
This project was an invaluable learning experience.
Under praksisen min hos Mieke Vink ved Lüchinger Architects i Rotterdam arbeidet jeg side om side med medintern Thomas Zhang på et prosjekt for å transformere en historisk låve i Oud-Alblas til en beboelig bolig. Låven, opprinnelig bygget for kyr, hadde en karakteristisk svartbeiset trefasade og stråtak — en lokal byggetypologi som er vanlig i det nederlandske polderlandskapet.
Oppgaven krevde at den landbruksmessige konstruksjonen ble gjort om til en komfortabel bolig for en eldre dame, mens bygningens landlige karakter og materialærlighet ble bevart. Designet beholdt den eksisterende bærende konstruksjonen og den karakteristiske fasaden, og reorganiserte interiøret rundt et nytt sentralt oppholdsrom med klare forbindelser til hagen.
Prosjektet utdypet min forståelse av adaptiv gjenbruk — disiplinen med å lese en eksisterende bygnings logikk og romlige potensiale før noen endringer foreslås.
Durante meu estágio com Mieke Vink no escritório Lüchinger Architects em Rotterdam, trabalhei junto com o colega estagiário Thomas Zhang em um projeto para transformar um celeiro histórico em Oud-Alblas em uma habitação residencial. O celeiro, originalmente construído para abrigar vacas, tinha uma fachada de madeira pintada de preto e um telhado de palha — uma tipologia vernácula comum na paisagem dos pôlderes holandeses.
O briefing propunha a conversão da estrutura agrícola em uma moradia confortável para uma senhora idosa, preservando o caráter rural do edifício e sua honestidade material. O projeto manteve a estrutura portante existente e a fachada característica, reorganizando o interior em torno de um novo espaço de estar central com conexões claras com o jardim.
O projeto aprofundou minha compreensão da reutilização adaptativa — a disciplina de ler a lógica e o potencial espacial de um edifício existente antes de propor qualquer alteração.







