
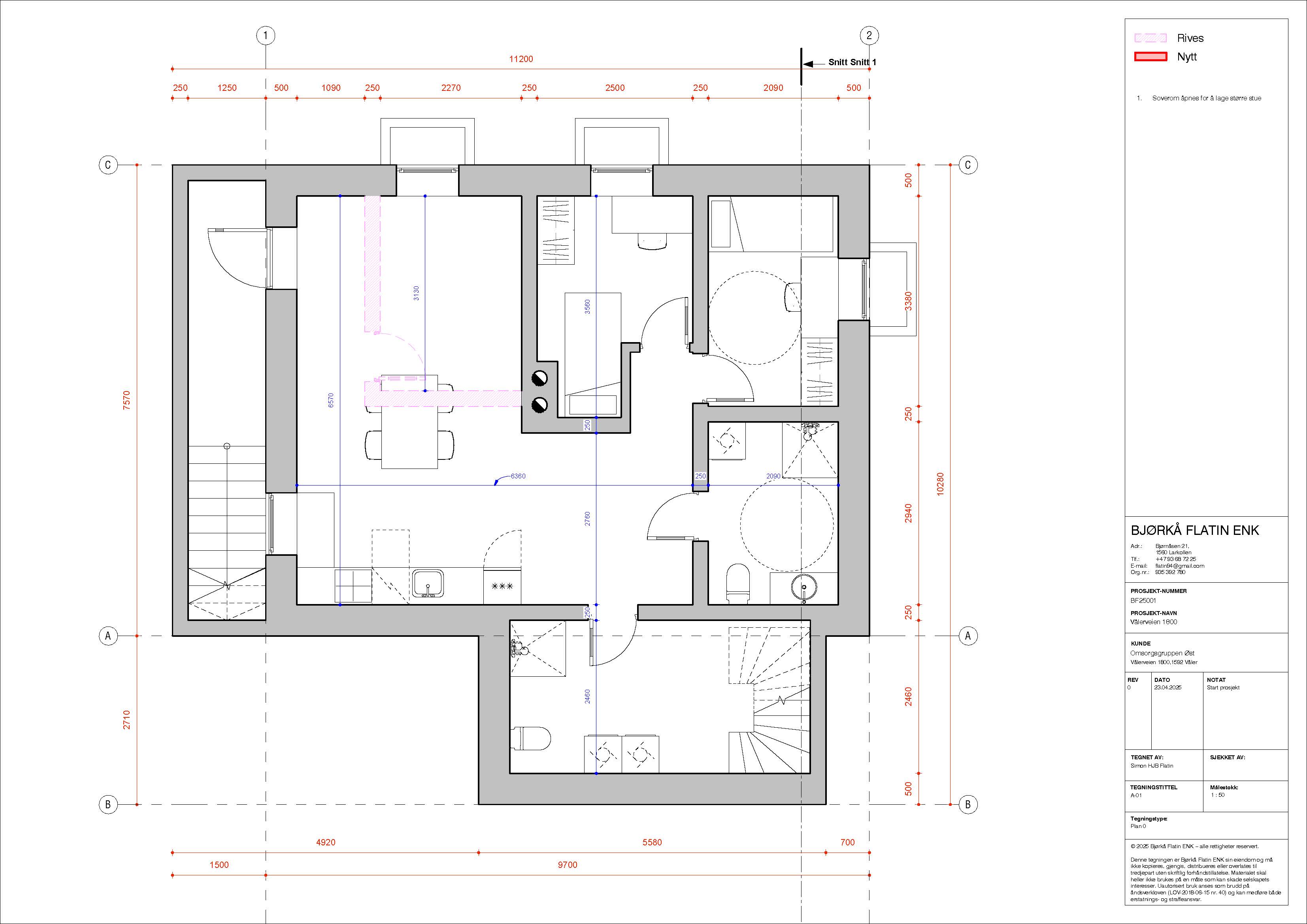
Omsorgsgruppen Våler is a planning application project for the municipality of Våler, Innlandet. The work involved assessing an existing single-family home and preparing the necessary documentation to obtain municipal approval for its conversion to assisted living use. The focus was on compliance with local planning regulations and care-facility standards — not the architectural design of a new building.
Omsorgsgruppen Våler er et søknadsprosjekt for Våler kommune i Innlandet. Arbeidet innebar å vurdere en eksisterende enebolig og utarbeide nødvendig dokumentasjon for å oppnå kommunal godkjenning av bruksendring til omsorgsbolig. Fokuset var på overholdelse av lokale planbestemmelser og omsorgsfaglige krav — ikke arkitektonisk utforming av en ny bygning.
Omsorgsgruppen Våler é um projeto de licenciamento para o município de Våler, Innlandet. O trabalho envolveu a avaliação de uma residência unifamiliar existente e a preparação da documentação necessária para obter aprovação municipal para sua conversão em moradia assistida. O foco foi na conformidade com os regulamentos de planejamento local e padrões de instalações de cuidado — não no projeto arquitetônico de um novo edifício.


